Фонд держмайна виставив на аукціон об’єкт у Чорнобильській зоні відчуження (ФОТО)
12:01 29 Жовтня, 2025
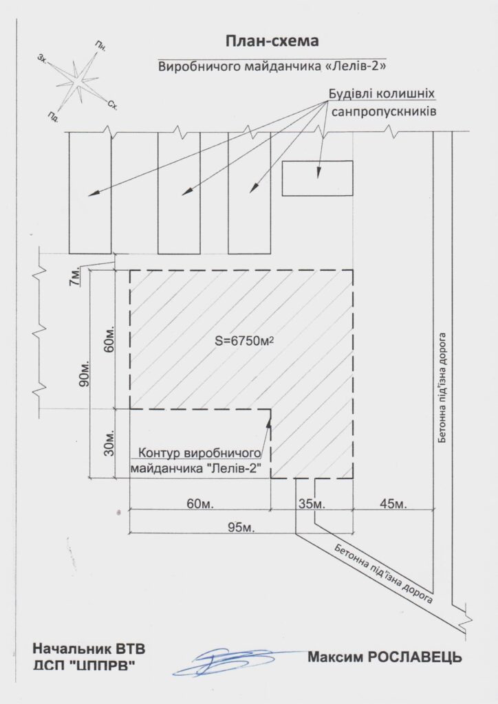
Фонд державного майна України оголосив онлайн-аукціон з оренди виробничого майданчика «Лелів-2», що розташований у Чорнобильській зоні відчуження Київської області.
Торги були заплановано на 28 жовтня 2025 року.
Об’єкт оренди перебуває на балансі Державного спеціалізованого підприємства «Центральне підприємство з поводження з радіоактивними відходами».
Загальна площа виробничого майданчика становить 6750 м².
- Стартова ціна оренди – 19,2 тис. грн.
- Прийом пропозицій тривав до 27 жовтня 2025 року.
- Місце розташування – Київська область, Чорнобильська зона відчуження, район ПуСО «Лелів».
Аукціон не відбувся через відсутність претендентів на лот.
Щоб бути першими в курсі новин Запоріжжя та України, підписуйтесь на соцмережі Акценту: 🔗YouTube | TikTok | Instagram | Телеграм | Facebook | Х



